40 logements sociaux et crèche en pierre massive – PUP ACI à Villeurbanne
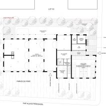
La matière et le principe structurel du projet proposé accompagnent les horizons pensés par les concepteurs du PUP ACI. La fragmentation volumétrique de l’ensemble des nouveaux îlots créés, dans le cadre d’ilot muni d’espaces publics, la notion de socle des d’émergences qui appréhende des échelles différentes inscrivant fortement les bâtiments dans la ville renouvelée. Le socle constitue l’accroche avec l’espace public. De forte hauteur (3,50 m sous dalle), il est conçu afin d’être le plus ouvert possible. Il regroupe l’ensemble des espaces communs de l’immeuble, ainsi que la crèche. Les grands espaces, principalement dédiés à la crèche sont munis de larges arcs en pierre pour libérer l’espace au sol. Ces locaux s’ouvrent sur l’espace public au travers de larges baies vitrées. La trame de façade, régulière et sobre, permettra une adaptation rapide dans le cadre de l’aménagement définitif de la crèche. Ces espaces traversants assurent une perméabilité visuelle et une transparence, ils provoquent un dialogue fort entre le parc et le cœur d’îlot, largement planté








