Le centre culturel Wendoogo, implanté en périphérie du village de M’Boumba au cœur du Sahel, s’inscrit dans un paysage désertique ponctué de quelques arbres isolés et bordé par le fleuve Sénégal. Le projet répond à la volonté d’ancrer un lieu de création culturelle et de formation artistique dans un territoire soumis à des conditions climatiques extrêmes. Il propose ainsi un espace dédié autant à la transmission des savoirs techniques liés au spectacle vivant qu’à l’accueil d’événements tels que la biennale « À Sahel Ouvert ».
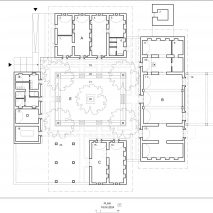
L’organisation architecturale repose sur quatre bâtiments indépendants, chacun dédié à un pôle d’activités : une petite salle de spectacle avec régie et studio d’enregistrement, un pôle informatique et gestion du centre, un fablab avec aire de montage extérieure, et un bâtiment regroupant les services et la technique. Surélevés pour se protéger des pluies, ces édifices sont disposés de manière à former une cour centrale dotée de gradins et abritée naturellement par les arbres ; cette cour devient le cœur social du projet et un espace de rencontre.
L’architecture revendique un ancrage fort dans les savoir-faire locaux en utilisant la terre crue, matériau traditionnel du Fouta-Toro avant l’arrivée du béton. Inspirée par la technique de la voûte nubienne, rendue célèbre par Hassan Fathy et aujourd’hui encouragée dans la région, la construction utilise des briques d’adobe produites sur place. Cette technique permet d’ériger des voûtes sans coffrage, uniquement par la géométrie de pose des briques, tout en mobilisant une main-d’œuvre locale pour la fabrication des matériaux. Les murs épais de 40 à 80 cm offrent une excellente inertie thermique et procurent un confort durable malgré la chaleur accablante.
Pour répondre aux contraintes climatiques, le projet développe une véritable stratégie bioclimatique inspirée des pratiques vernaculaires. Des tubes de ventilation enterrés sont associés à des canaris, jarres en terre cuite poreuse, afin de rafraîchir l’air par évaporation. Des cheminées d’extraction statique évacuent l’air chaud accumulé en hauteur dans les voûtes, tandis qu’une tour à vent en terre crue exploite l’effet Venturi pour augmenter la circulation d’air frais dans la salle de spectacles. Enfin, une structure métallique arborescente soutient une toile d’ombrage évoquant le feuillage protecteur des acacias du Sahel, créant une couverture légère qui rappelle les espaces de palabre traditionnels.
Le centre culturel Wendoogo constitue ainsi une architecture engagée, enracinée dans son territoire, alliant ressources locales, intelligence constructive et adaptation climatique. Il assume une vocation sociale et culturelle forte, tout en affirmant que la terre peut redevenir un matériau du futur. Comme un signal dans le désert, le projet fait émerger du sable un lieu de culture, d’apprentissage et d’espoir partagé.







